DuPage, US
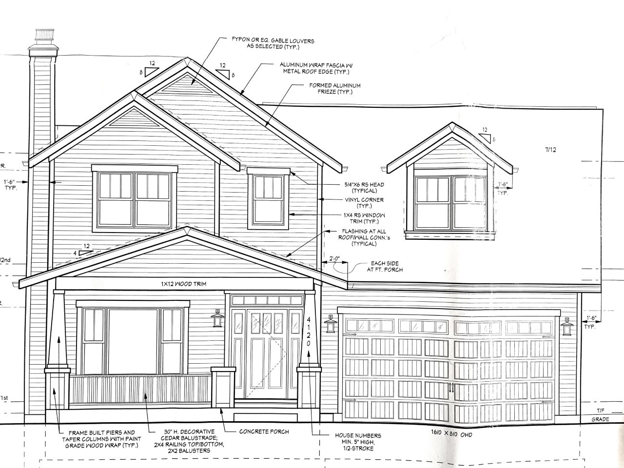
WILL BUILD TO SUIT! Quality, experienced, local builder in Downers Grove offering a built to suit opportunity in Downers Grove! Call today to set up a meeting with this builder to get your custom home underway! The proposed plan calls for a wonderful package of features, custom quality finishes, and inclusions unlike any other similar home. Offering 4 bedrooms and 2.5 baths with 2600 sqft of finished living space. Also to include, a fireplace, a Full 9 ft basement with roughed in plumbing, and 9 ft ceilings on the main level with plenty of allowances for all your finishing touches. The garage will also be finished and attached. Bring your own plans or customize the proposed plans to meet your lifestyle. Do not miss an opportunity to build your dream home! List price based on builder inclusions and allowances, customization is welcomed! ALL PHOTOS ARE FROM PREVIOUS PROJECTS COMPLETED BY BUILDER!
Courtesy Of: Coldwell Banker Realty
General Features
- List Date:
- 11/06/2024
Public Schools
- Elementary School:
- Fairmount Elementary
- High School:
- South High School
Interior Features
- Living Area Source:
- Builder
- Bedrooms Possible:
- 4
- Bathrooms Full:
- 2
- Rooms Total:
- 8
Exterior Features and Amenities
- Lot Size Dimensions:
- 50 X 178
- Parking Total:
- 3
Financial
- Days On Market:
- 536
- Tax Annual Amount:
- $2,220.22
- Tax Year:
- 2023
Other Features
- Elementary School District:
- 58
- High School District:
- 99
- Middle Or Junior School District:
- 58
- Age:
- NEW Proposed Construction,NEW Will Build to Suit
The data relating to real estate for sale on this website comes in part from the Broker Reciprocity program of MRED LLC. Real Estate listings held by brokerage firms other than Hometown Real Estate are marked with the Broker Reciprocity logo or the Broker Reciprocity thumbnail logo (a little black house) and detailed information about them includes the names of the listing brokers. Some properties which appear for sale on this website may subsequently have sold and may no longer be available. The information being provided is for consumers' personal, non-commercial use and may not be used for any purpose other than to identify prospective properties consumers may be interested in purchasing.
Data last updated: 2026-05-02.
Copyright 2026 MRED LLC
